Réf : 2434
Vendu

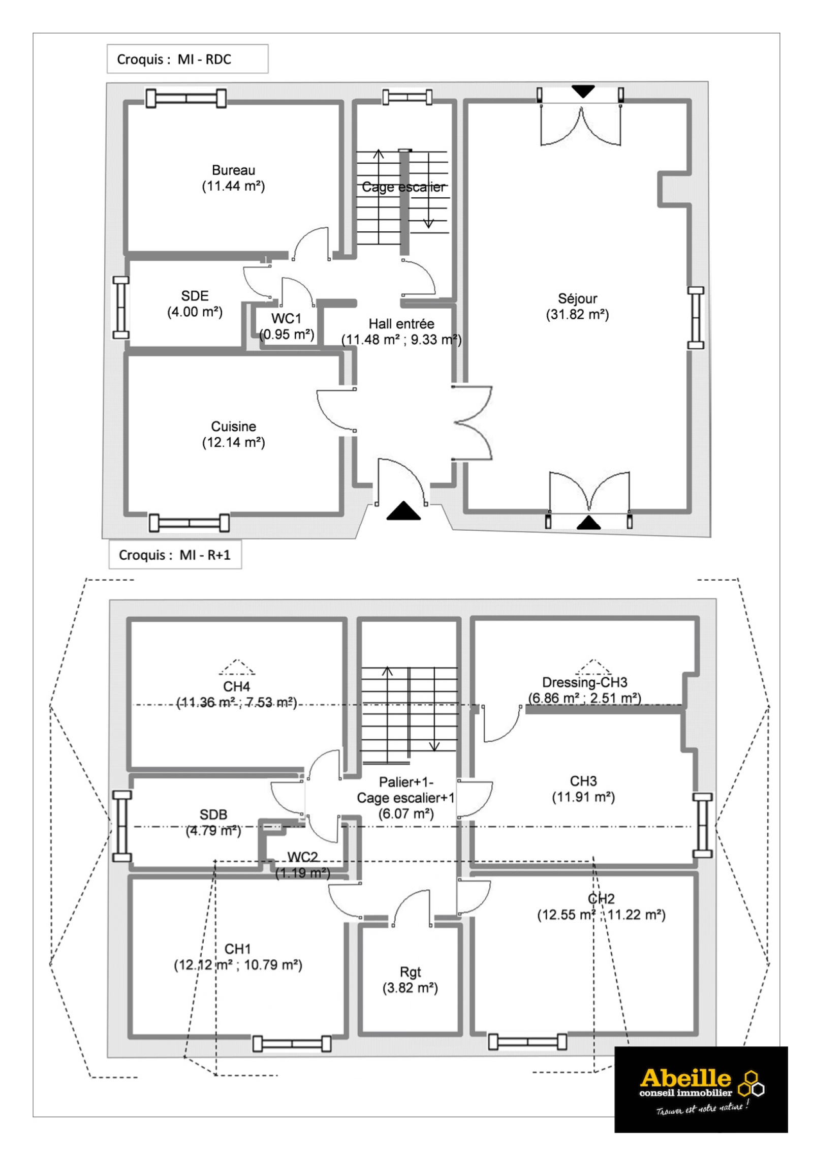
Sermaise (91530) MAISON DE 130 M2 SUR SOUS-SOL TOTAL, TERRAIN DE 884 M2.

7 Pièce(s)
5 Chambre(s)
1 Salle(s) de bain

Les infos Essentielles

Caractéristiques Valeurs
Code postal 91530
Surface habitable (m²) 130 m²
surface terrain 884 m²
Nombre de chambre(s) 5
Caractéristiques Valeurs
Nombre de pièces 7
Nombre de niveaux 1
Vue dégagée
Nb de salle de bains 1
Caractéristiques Valeurs
Nb de salle d'eau 1
Cuisine Séparée
Mode de chauffage Electrique
Type de chauffage Convecteur
Caractéristiques Valeurs
Format de chauffage Individuel
Nombre de parking 2
Exposition Sud
Année de construction 1977
Caractéristiques Valeurs
Quartier Calme
Copropriété NON

CADRE CHAMPETRE, CONSTRUCTION DE QUALITE.

Edifiée en 1977, maison traditionnelle de 130 m2 hab. sur sous sol total comprenant : entrée avec placard, salon/salle à manger avec cheminée donnant sur terrasse plein sud (32m2), cuisine aménagée indépendante, chambre, salle de douches et wc. A l'étage : dégagement, 4 chambres, débarras, salle de bains et Wc. Sous-sol total avec garage, cave et grande piéce à aménager à sa convenance. Le tout sur un terrain clos et arboré de 884 m2. Travaux de rénovation à prévoir, beaux volumes, calme garanti !

AUX PORTES DE SAINT-CHERON !

Les infos Financières

Les honoraires d'agence seront intégralement à la charge du vendeur  

Nos outils

Imprimer

Localisation Du bien

  • Commerces et santé
  • Loisirs
  • Ecoles
  • Transports
  • Pratique

Les infos Energetiques

DPE GES

Montant estimé des dépenses annuelles d'énergie de ce logement pour un usage standard est compris entre 2 550 € et 3 500 € . 2021 étant l'année de référence des prix de l'énergie utilisés pour établir cette estimation.

Intéressé(e) par Ce bien ?
Nous suivre sur